Denominazione

Spazi residenziali

Tipologia

Distribuzione – Arredi Interni

Destinazione d’uso

Abitativa

Luogo

Riccione (RN)

Ultimazione

2023

Progetto

Arch. Alessandro Franco (Studio RCF & Partners)

 

Fotografie

Veronica Bronzetti

Pubblicazioni –
Riconoscimenti

CONDIVIDI SU:

Relazione di progetto

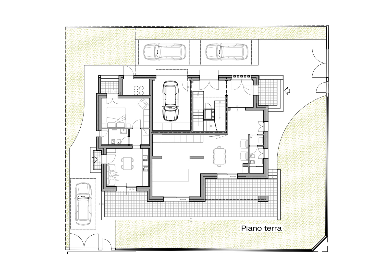
Il progetto riguarda la ristrutturazione totale di una casa unifamiliare costituita da due piani fuori terra, un sottotetto ed una porzione di piano seminterrato. Il fabbricato è costituito da due unità immobiliari distinte ad uso civile abitazione: una localizzata al piano terra e l’altra, accessibile tramite una scala interna,comprende i piani terra, primo e sottotetto.



L’intervento non prevede modifiche sostanziali alla sagoma perimetrale eccezione fatta per la chiusura di due portici al piano terra, necessaria per la ridistribuzione della superficie abitativa ai vari livelli.
L’appartamento che occupa parte del piano terra presenta una distribuzione interna costituita da una zona soggiorno, pranzo, cucina, una camera da letto, ed un bagno. La seconda unità abitativa con l’ingresso al piano terra ha la seguente distribuzione interna: al piano terra è collocata la zona soggiorno, pranzo, cucina, ed un bagno, con relativo antibagno. La scala interna permette il collegamento verticale al piano primo costituito da una zona soggiorno, uno studio, e la zona notte con la camera padronale con accesso diretto alla cabina armadio ed al bagno, oltre ad altre due camere da letto ed un bagno. La medesima scala serve anche il piano sottotetto, dove sono stati ricavati quattro vani ad uso ripostiglio con il relativo disimpegno.




Nel vano scala è stata installata una piattaforma elevatrice.
La struttura esistente in muratura portante ha consentito piccole modiche distributive tese a migliorare soprattutto i percorsi interni e l’arredabilità degli ambienti. Nel living del piano terra si è resa necessario una modifica strutturale per ottenere la massima ampiezza possibile dello spazio che include l’area cucina e la zona a pranzo da cui, attraverso la realizzazione di ampie vetrate scorrevole, si può godere della vista del giardino circostante.



Le pavimentazioni scelte consistono in gres porcellanato di ampio formata al piano terra e legno naturale di Rovere al piano primo, così come i gradini della scala di collegamento interno; i rivestimenti dei bagni sono in tessere di mosaico a cromie chiare.