Denominazione

Residenza XIX Ottobre

Tipologia

Nuova costruzione

Destinazione d’uso

Abitativa

Luogo

Riccione (RN)

Ultimazione

2023

Progetto

Arch. Alessandro Franco (Studio RCF & Partners)

 

Fotografie

Veronica Bronzetti

Pubblicazioni –
Riconoscimenti

CONDIVIDI SU:

Relazione di progetto

Il progetto è nato dalla demolizione del preesistente edificio alberghiero, risalente agli anni ’70, e dalla successiva ricostruzione di un nuovo fabbricato ad uso residenziale comprendente 6 unità abitative.



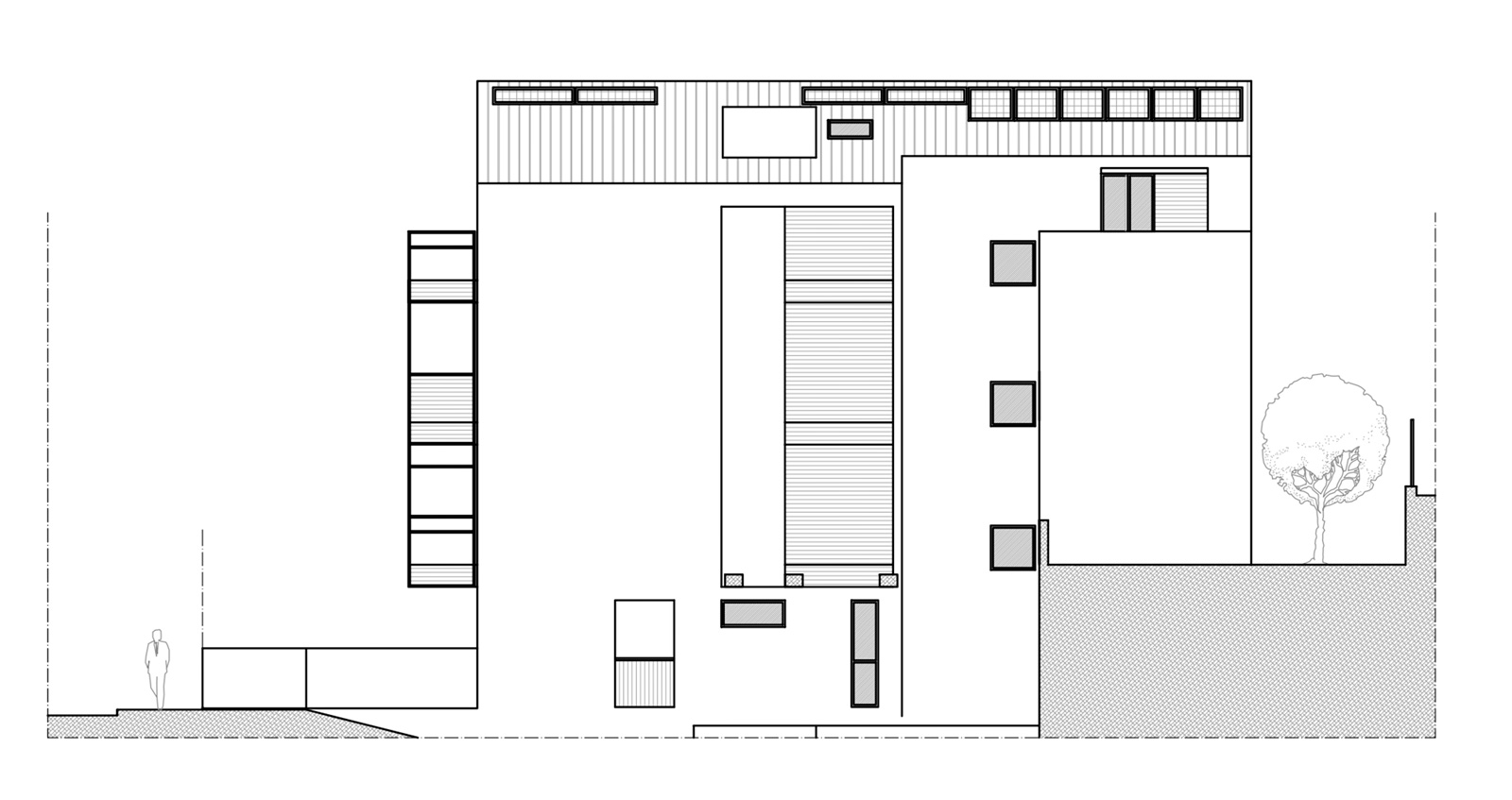
Il fabbricato, composto da un corpo principale di n. 4 livelli fuori terra, presenta una sagoma planimetrica situata all’interno di quella preesistente, così come il volume architettonico.



E’ presente un piano interrato ad uso parcheggio privato. Il lato Rimini del lotto è occupato dalla rampa carrabile di accesso. Un ascensore collega il piano interrato ai piani superiori. La copertura del nuovo edificio è del tipo a capanna.
La struttura portante del fabbricato è stata realizzata in cemento armato.




Sul solaio di copertura è stato realizzato un lucernario in falda al fine di ottimizzare la luce diurna nel vano scala; sul manto di copertura sono presente i necessari pannelli fotovoltaici necessari all’efficientamento energetico previsto dalla normativa vigente.
Esternamente il fabbricato è stato caratterizzato da un intonaco a tinta grigio scura.
I parapetti su Via XIX Ottobre sono stati realizzati da una struttura metallica continua con profili in acciaio zincato e verniciato, tale da configurarsi come una “maschera urbana” in grado di creare una privacy nelle logge. La morfologia compositiva è un omaggio alla struttura presente sugli alzati dell’Hotel Savioli.