Denominazione

Villa M

Tipologia

Arredi Interni

Destinazione d’uso

Abitativa

Luogo

Riccione (RN)

Ultimazione

2025

Progetto

Arch. Alessandro Franco (Studio RCF & Partners)

 

Fotografie

Veronica Bronzetti

Pubblicazioni –
Riconoscimenti

CONDIVIDI SU:

Relazione di progetto

La progettazione degli arredi interni è avvenuta contestualmente al progetto dell’involucro architettonico; ne ricalca infatti il criterio metaprogettuale. Come il linguaggio esterno è improntato sulla pulizia compositiva dei volumi, anche all’interno degli spazi domestici il minimalismo non è freddo amore dell’assenza,del vuoto, ma intende innescare un processo rigenerante che si conclude con un linguaggio contemporaneo .



La ricerca della massima chiarezza compositiva ha comportato la presenza calcolata di pochi mobili ed arredi, tale da far prevalere la bellezza degli spazi aperti e della luce sulle pareti bianche.
Tutti gli arredi sono progettati su misura, pensati per quel luogo e realizzati da artigiani locali, così come i tendaggi ed i componenti di illuminazione.



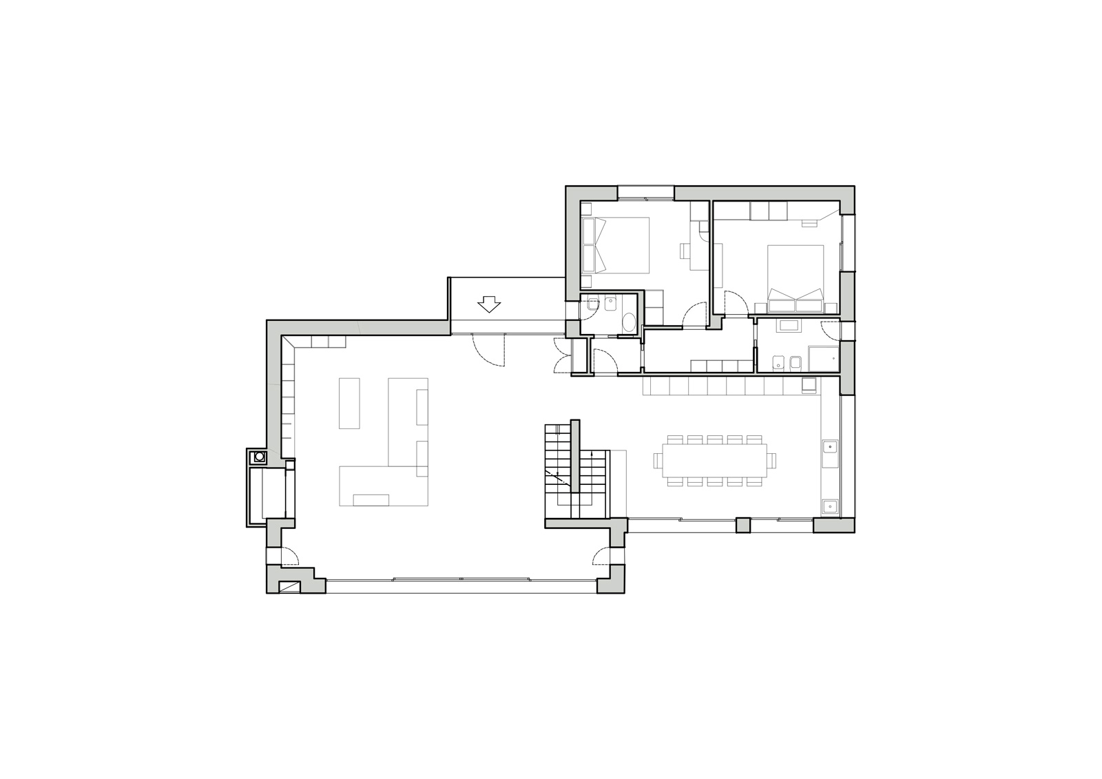
Nel grande soggiorno del piano terra la progettazione degli arredi assume una forma planimetrica ad “elle” comprendendo anche il camino ; da qui parte un elemento basso e compatto che in prossimità dell’angolo diviene base per una alta scaffalatura a giorno, caratterizzata da elementi divisori disassati. Il materiale utilizzato è il legno rovere a vista, nella sua veste piana e scanalata, ed il legno laccato di colore grigio.
Il camino è stato pensato come elemento architettonico in grado di disegnare esteticamente lo spazio del living. Costituito da una struttura in acciaio e cartongesso, è totalmente rivestito in pietra Travertino Rapolano, come la piscina esterna e le due sedute che delimitano la piazza. La grande vetrata è quadripartita; le due ante centrali scorrono lateralmente consentendo una vista continua della piscina esterna fino al mare ; la pavimentazione in lastre di Pietra Almont , non levigata e spazzolata, dall’interno prosegue su tutta la piazza esterna.



La scala interna è concepita come elemento leggero e trasparente, costituita da gradini a sbalzo in pietra Almont (la stessa di tutta la pavimentazione interna del piano terra ed esterna) collegati al muro centrale che divide le rampe. I parapetti in vetro trasparente svolgono una funzione stabilizzatrice.
Il mobile cucina è formato da una parte compatta a tutta altezza per poi divenire piano di lavoro e struttura pensile, permettendo così la vista del giardino esterno tramite una lunga vetrata fissa.
Le camere da letto del piano terra presentano mobili a tutta altezza con ante scorrevoli, dialoganti con le scrivanie per lo studio ed i comodini. Il design è molto semplice, lineare e unisce cromaticamente il legno rovere a vista con il laccato colore grigio, combinazione presente nella progettazione dell’intera casa.



Il bagno ospiti è realizzato con lastre di Travertino Rapolano a “poro aperto” a tutta altezza, dove la luce si sofferma creando un chiaro-scuro materico di grande suggestione.
I tendaggi delle camere sono realizzati con un tessuto melangiato semi-trasparente con cromatismi grigi tono su tono, mentre le tende oscuranti elettrificate degli spazi a giorno di tipo avvolgibile garantiscono il controllo della luminosità durante le ore diurne